1.产品概述:
LW34-40.5型户外高压六氟化硫路器是三相交流50赫兹的户外高压电气设备;适用于40.5kV输配电系统的控制和?;?;也可用于联络断路器及开合电容器组的场合;并可内附电流互感器供测量与?;び谩W34-40.5型断路器配用CT14型弹簧操动机构。断路器符合国家标准GB1984-1989《交流高压断路器》和国际电工委员会标准IEC60056:1987《高压交流断路器》的要求。断路器的主要特点:开断性能优良,采用压气式灭弧室,燃弧时间短,电寿命长,在额定电压下连续开断25千安20次不检修,不更换六氟化硫气体;绝缘可靠,气压在零表压时可耐受40.5KV10分钟;机械可靠性高,合闸能力强,能频繁操作;开合电容器组电流400安无重燃;切空长线25、50公里无重燃;结构简单、体积小,不检修周期长。40.5KV-126KV六氟化硫断路器,佳吉电气专业生产。
2.使用环境条件:
海拔高度:不超过2500;米;
高原型4000米;
环境温度:-30℃—+40℃(特殊要求-40℃—+40℃);
相对湿度:日平均不大于95 %,月平均不大于90 %(25℃);
风速:不大于35米 / 秒;
污秽等级为III级;
瓷套爬距为1050mm(1320mm)(公称爬电比距不低于25 mm / kV)。
日照:0.1w/cm2;
覆冰:10mm(MAX)
地震条件:垂直加速度0.3g;
水平加速度0.15g(max)没有易燃物质、爆炸危险、化学腐蚀及剧烈振动的场合。
高原型4000米;
环境温度:-30℃—+40℃(特殊要求-40℃—+40℃);
相对湿度:日平均不大于95 %,月平均不大于90 %(25℃);
风速:不大于35米 / 秒;
污秽等级为III级;
瓷套爬距为1050mm(1320mm)(公称爬电比距不低于25 mm / kV)。
日照:0.1w/cm2;
覆冰:10mm(MAX)
地震条件:垂直加速度0.3g;
水平加速度0.15g(max)没有易燃物质、爆炸危险、化学腐蚀及剧烈振动的场合。
3.主要技术参数:
|
序号
|
名 称
|
单 位
|
数 据
|
||||
|
1
|
额定电压
|
kV
|
40.5
|
||||
|
2
|
最高电压
|
kV
|
40.5
|
||||
|
3
|
额定绝
缘水平
|
雷电冲击耐压(全波峰值)
|
kV
|
200*/215(断口)注:标准化185 kV
|
|||
|
工频耐压(1分钟)
|
kV
|
95/118(断口)
|
|||||
|
4
|
额定电流
|
A
|
1600/2000
|
1600/2000/2500/3150
|
|||
|
5
|
机械寿命
|
次
|
5000
|
||||
|
6
|
六氟化硫气体额定压力(20℃时表压)
|
MPa
|
0.40
|
0.50
|
|||
|
7
|
闭锁压力(20℃时表压)
|
MPa
|
0.3
|
0.40
|
|||
|
8
|
最抵使用环境温度
|
℃
|
-40
|
-30
|
|||
|
9
|
额定短路开断电流
|
kV
|
20
|
25
|
25
|
31.5
|
|
|
10
|
额定短路关合电流(峰值)
|
kV
|
50
|
63
|
63
|
80
|
|
|
11
|
额定短时耐受电流(热稳定电流)
|
kV
|
20
|
25
|
25
|
31.5
|
|
|
12
|
额定峰值耐受电流(动稳定电流)
|
kV
|
50
|
63
|
63
|
80
|
|
|
13
|
额定失步开断电流
|
kV
|
5
|
6.3
|
6.3
|
8
|
|
|
14
|
额定短路开断电流下的累计开断次数
|
次
|
20
|
||||
|
15
|
额定短路持续时间
|
S
|
4
|
||||
|
16
|
合闸时间(额定操作电压下)
|
S
|
≤0.1
|
||||
|
17
|
分闸时间(额定操作电压下)
|
S
|
≤0.06
|
||||
|
18
|
额定操作顺序
|
|
分-03s—合分
-180s—合分
|
||||
|
19
|
额定开合单个电容器组电流
|
A
|
400
|
||||
|
20
|
年漏气率
|
% / 年
|
≤1
|
||||
|
21
|
六氟化硫气体水份含量(20℃时)
|
uL/L
|
≤150
|
||||
|
22
|
配CT14型弹簧操动机构的额定操作电压
|
|
AC/DC:380/220V/110V
|
||||
|
合闸线圈、分闸线圈电压
|
V
|
交流:220 380
直流:48 110 220
|
|||||
|
储能电机电压
|
V
|
交流:220
直流:220/110
|
|||||
|
23
|
六氟化硫气体重量
|
Kg
|
5
|
||||
|
24
|
断路器(包括操动机构)重量
|
kg
|
1000
|
||||
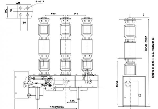
4.产品外形尺寸图:

推荐资讯 / Recommended News
- 2022-08-24 持久浅谈真空断路器的理伦
- 2022-08-24 持久浅淡真空断路器
- 2022-08-24 智能真空断路器的技术问题解答
- 2022-08-24 ZW32真空断路器核心作用
- 2022-08-24 真空断路器比较难处理的问题
- 2022-08-24 高压真空断路器的维护安装
- 2022-07-23 真空断路器寿命是哪些因素影响的
- 2022-07-23 真空断路器跳闸次数多有没有影响
- 2022-07-23 真空断路器试验过程中的事项
- 2022-07-23 真空断路器原则和功能的研究范围
乐清市持久电气有限公司
收藏本站
联系持久







