一、概述
JLSZ户外干式高压计量箱是根据供电部门、电力用户需要,在同类产品的基础上改进而成的高压计量箱,它符合国家电力公司提倡的电力设备无油化。改进绝缘方式,提高技术参数等。适合于额定电压10kV、额定频率为50HZ的供电线路中作电能计量或考核线损之用。它运行可靠,使用寿命优于油浸式互感器。
二、特点
1干式高压计量箱为两元件型,配备A、C相两只电流互感器,和两只电压互感器,采用V/V接线,额定二次电流5A,额定二次电压100V,配用三相三线有功或无功电能表。
2 对于季节性负荷变化较大的电力用户,可选用双变比宽量限高压计量箱,不停电可在表箱内通过改变专用互感器端子盒连接片倒换变比。
3 高压计量箱和组合互感器可一体连接,组成连体高压计量箱,在柱上安装使用;也可以分别安装,柱上安装组合互感器,下面安装计量表箱,中间用铠甲电缆连接。
三、参数
额定电压:10KV
电压互感器容量:20VA
电流互感器容量:10VA
电流倍率:20—1200/5
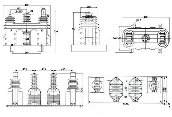
四、安装尺寸图

推荐资讯 / Recommended News
- 2022-08-24 持久浅谈真空断路器的理伦
- 2022-08-24 持久浅淡真空断路器
- 2022-08-24 智能真空断路器的技术问题解答
- 2022-08-24 ZW32真空断路器核心作用
- 2022-08-24 真空断路器比较难处理的问题
- 2022-08-24 高压真空断路器的维护安装
- 2022-07-23 真空断路器寿命是哪些因素影响的
- 2022-07-23 真空断路器跳闸次数多有没有影响
- 2022-07-23 真空断路器试验过程中的事项
- 2022-07-23 真空断路器原则和功能的研究范围
乐清市持久电气有限公司
收藏本站
联系持久







